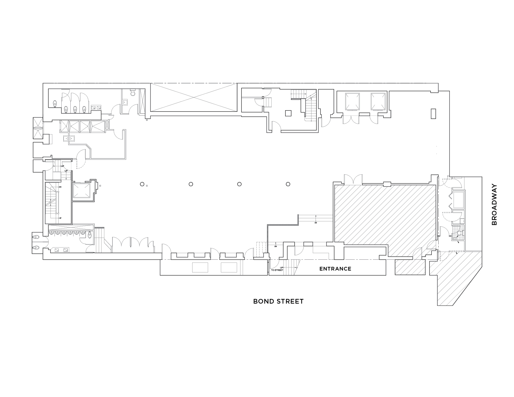
666 Broadway 11th Floor, New York, NY 10012
Property Details
Neighborhood:
NoHo
Total Space:
0 SF
Property Type:
Lease
Asking Rent:
Upon Request
Neighbors
Zero Bond, Equinox, Adidas, BondST, New York University, CorePower Yoga, Kith, Starbucks
Contact Exclusive Agents:


Comments