30 Carmine Street, New York, NY 10014
Property Details
Neighborhood:
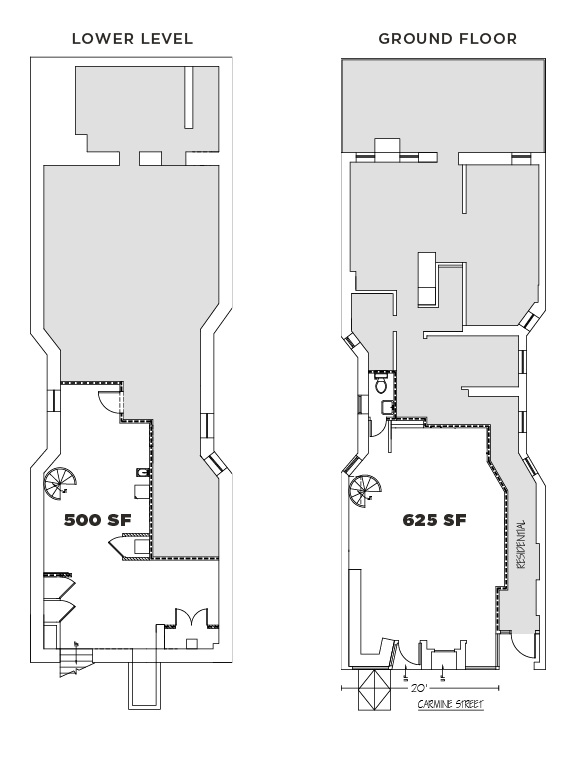
Total Space:
0 SF
Total Frontage:
20 FT
Property Type:
Lease
Asking Rent:
Upon Request
Neighbors
Jack’s Wife Freda, Dig, Nami Nori, Joe’s Pizza, Venchi Chocolates, Cocu, Sweetgreen, Numero 28, Dos Toros, Rocco’s, Market Table, Qahwah House, Daily Provisions, Gab’s, Emily Pizza, Ama Raw Bar, Grey Dog Café, Jajaja, Wingstop, Tacombi, Bagels on the Square, Spunto Pizza, Temperance Wine Bar, Bandits, Molly’s Cupcakes, Faicco’s, Murray’s Cheese
Contact Exclusive Agents:


Comments